| KP-10型快速排氣閥 |
![]() |
||||||||||||||||||||||||||||||||||||||||||||||||||||||||||||||||
|
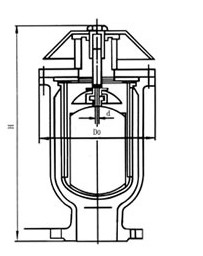
作用原理: 主要用途: KP-10型快速排氣閥 適用于工業介質為水的管路上,作為快速排除管道內氣體的設備,以提高輸送水設備的效率和保護管道不致變形破裂,是管道的必備之設備。閥為圓桶狀式閥體,共內部主要有不銹鋼浮球及塞頭。本閥裝設于泵埔出口處或送配水管線中,用以大量排除管道中的集結之空氣,以增進水管及抽水機使用效率,且與管內一旦出現負壓時,此閥能迅速吸入空氣,以保管線因負壓所產生損壞。 KP-10型快速排氣閥
主要特點: 1、能夠排除管道中的氣體,減少阻力節約能源。 2、當管道負壓時,本產品能快速自動吸入空氣防止管道破裂。 3、排氣能力是普通雙孔排氣閥多倍。 4、浮球托架為不銹鋼,使用壽命長,安全可靠。 KP-10型快速排氣閥
技術參數: 1.介質:清水 2.溫度:常溫 3.閥體:灰鑄鐵HT200 4.浮球與塞頭:不銹鋼 5.密封材料:丁晴橡膠 6.閥體試驗打壓:1.5mpa 7.浮球、密封試驗打壓:0.05-1.1MPA不漏水 KP-10型快速排氣閥
![]() ![]() 法蘭連接尺寸
KP-10型快速排氣閥 每小時排氣量表
|
免責聲明:以下信息由企業自行提供,內容的真實性、準確性和合法性由發布企業負責。鍋爐信息網對此不承擔任何保證責任。




