|
公司基本資料信息
|
|||||||||||||||||||||||||

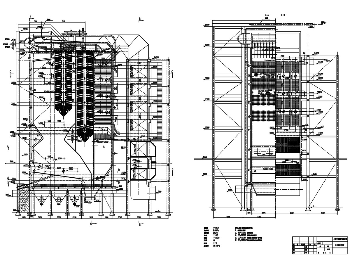
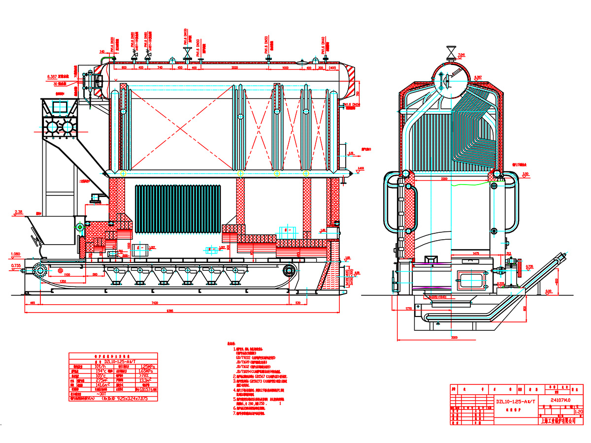
110噸燃甘蔗渣水冷振動爐排爐
24107M.0dwg
生物質鍋爐:
公司針對燃料品種特性,采用適當的燃料收集,運輸和爐前燃料傳送方式,并采用鍋爐結構形式,配置合適的燃燒系統及配風方式。解決了爐內結焦,燃燒不充分和尾部受熱面易腐蝕等問題。
鍋爐容量:
蒸汽爐:10-130t/h
熱水爐:7-116MW
鍋爐參數:
壓力:1.0-9.8MPa
溫度:184-540°C
壓力:1.0-1.6MPa
溫度:95-150°C
鍋爐燃料:廢木材、秸稈、甘蔗渣、棕櫚殼、生物質顆粒等。
燃燒方式:循環流化床、水冷振動爐排、往復爐排、鏈條爐排 、(水冷)固定爐排、下伺爐等。
鍋爐特點:
a、采用合理送料系統,進料均勻性好,與負荷追蹤性好,自動化水平高。
b、采用合理的燃燒設備,設計層燃,懸浮燃燒或者層燃混懸浮燃燒的方式,確保燃料充分燃燒并燃燼。
c、合理布置受熱面,組織成充分的燃燒空氣動力場,解決了燃燒不充分和尾部受熱面易腐蝕問題。
d、選擇合理的爐膛出口煙溫及對流受熱面煙氣流速,減少鍋爐積灰或磨損。