|
公司基本資料信息
|
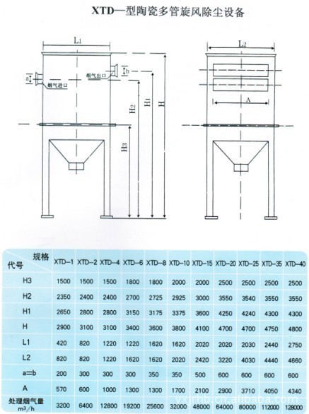
|||||||||||||||||||||||||||
XTD-型陶瓷多管除塵器,是我公司研究開發的新一代高效低阻除塵設備,具有歐耐腐蝕、耐磨損、耐高溫、不堵塞、使用壽命長、運行管理簡單、無費用,沒有二次污染等優點,是0.5T-670T/h鍋爐理想的除塵設備。
一、工作原理
該除塵器為旋風類除塵器,當含塵氣體進入除塵器,通過陶瓷導向器,在旋風子內部高速旋轉,在離心力的作用下,粉塵和氣體分離,粉塵降落在集塵箱內,經放灰閥排出,凈化的氣體形成上升的旋流,通過排氣管匯于集氣室,經出口由煙囪排出,達到除塵效果。
二、主要技術指標

三、安裝使用注意事項
1、 在運輸和安裝過程中注意碰撞,做到輕拿輕放。
2、 在安裝時,所有法蘭與法蘭連接時中間需加石棉繩,并用螺栓栓緊,防止漏風,影響除塵效率。
3、 在投入使用后,務必按時出灰,一般不超過4小時一次,以防止集塵箱內集塵過多。
4、 設計和使用單位應根據鍋爐的排氣量、煙氣流量,配套使用除塵器,并提供使用單位鍋爐除塵器周圍空間。

免責聲明:以下信息由企業自行提供,內容的真實性、準確性和合法性由發布企業負責。鍋爐信息網對此不承擔任何保證責任。